艺术创作实践 | 炫·青春 丨艺术学院建筑系毕业作品展
2020-06-01

云 · 展 · 览
毕 · 业 · 作 · 品 · 展 ·(一)
南通大学啬园校区九号楼展厅
城市中,没有静止的人
我们总是辗转于这里或者是那里
珍惜着自己的情感与记忆
城市,是一个磁场
不仅维系着基础生活的运转
也维系着人的交往
当我们把建筑设计与人文情怀相连
当我们把创意在纸上描绘
一栋栋建筑
在手下变得鲜活
不只是工业技术在进步
人的生活也在丰富
从艺术中心到社区服务
从游客服务到青少年的活动场
他们,用五年知识的沉淀
在有限的时间里
解读建筑与人的关系
对空间作出更深入的探索
他们翻阅资料、琢磨图纸
努力开拓视野,深入学习
不厌其烦地修改
去体会“凝固的艺术”
从起初懵懂的画下一张草图
到如今完整方案的呈现
我们从青涩走向成熟
如今
留下倾注心血的作品
带着新的期盼告别五月,继续向前
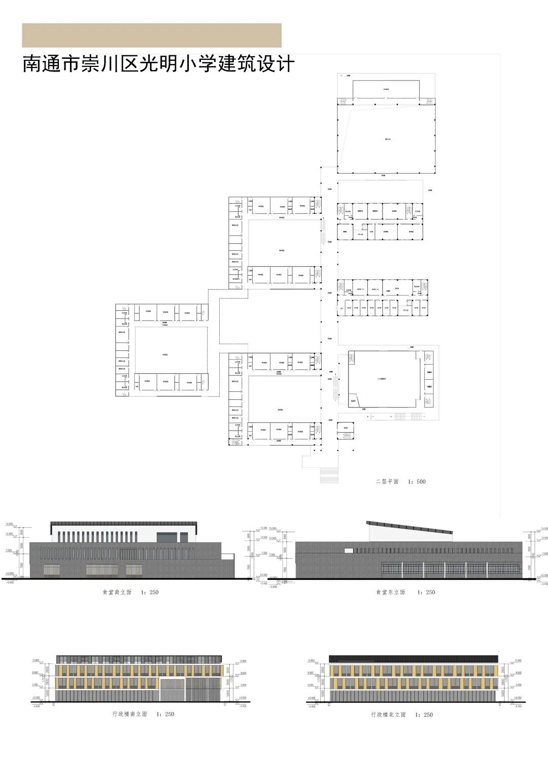
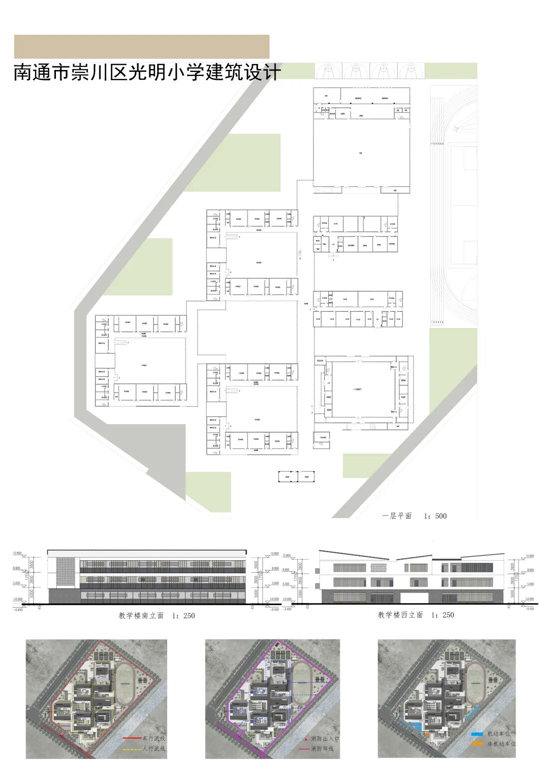
秦灶位于南通通吕运河北岸,素有南通北大门之称。本设计基于对南通市北秦灶盐运船舶文化的研究,并结合青少年成长特色,提出千帆的概念。由停泊在岸边的货船为出发点,运用象征手法转化为长方体和片墙形成序列,营造千帆过境的意境。建筑外部广场、运动场、滨河景观道、停车场围绕建筑主体呈环形布置,满足消防需求。建筑内部功能分区明确,培训主要分布于中间三个长方体体块中,展演、阅览、办公、餐饮分布于两侧,青少年和后勤人员流线清晰无干扰。建筑外墙以白色混凝土为主,营造粗犷干练的风格。建筑采用屋顶绿化、雨水收集及中水再利用系统等绿色技术达到节能减排。同时考虑无障碍设计,给予残疾人舒适与便捷。
研究基地,设定中心轴线和动静分区。西侧距离交通道路较近,作为教学区,方便进出,减少交通距离;东侧作为活动区,主要为操场和运动场地;中间行政轴为办公、辅助教学、配套设施等功能。 选取白鹿洞书院的单元作为标准教学单元。选取四方形围合空间的形式,形成相对私密的空间,也适应小学生不同年龄段的不同活动能力的需求,将年龄相近的孩子相对集中,便于管理,防止其他事件的发生。 对标准教学单元进行复制,生成院落。三个教学单元,将低年级、中年级、高年级的学生相对分开,同时围合形成四个院落。让孩子们在日常学习生活中体验不同的中国文化。 用连廊衔接各个院落,形成丰富的空间。连廊不仅具备空间上的层次,更能让学生们在课间享受阳光和新鲜空气,避免长时间的室内学习。本建筑设计项目为了开发汤山新城,充分挖掘潜力,为当地经济注入活力,吸引游客,同时提升当地居民艺术文化修养,增加城市交流空间。建筑以“洄”为主题,可拆分为“水”、“环绕的围墙”,将南京最具盛名的明城墙和秦淮河抽象化,融合一体。同时考虑到对周围景观的吸收和利用,入口采用大楼梯直通二层且二层采用退台的形式。为了保证地下一层的行政办公有自然光照和通风,特别设立了中庭。整体建筑形态也有将南京的传统文化环抱传承之意。为了充分利用东边和南边的河道景观,在建筑的东南方向设置了广场和景观廊道与西北处的入口广场相呼应。二层以上为开敞式,增加了人的室外活动空间,创造了人们日常交往的场所。本项目旨在提供城市过渡空间,为当地居民的日常生活注入艺术活力,同时为外来游客展现南京地区文化特征,提供一个开放、自由、舒适的艺术交往平台。
在人们的印象中,传统社区公共服务和社区商业大致就是几家烟杂店,理发店,水果店,零散的几家银行等,很显然,这样的观点已经不适合现代社区的需求。以底商为普遍形式的社区商业在功能设置上显得匮乏,也使得街景显得凌乱不堪,零散设置的社区公共服务设施也不利于居民使用,居民缴纳煤气,水,电费往往都需要几处奔波。本案中社区中心场地东侧紧邻社区公园,所以我不希望建筑的出现破坏了中心公园地区的绿色风景,更不希望妨碍公园内悠闲散步的居民,由此我产生了“将社区中心放在公园里,也将公园放在社区中心里”的想法,这也是本方案的设计主旨。于是在场地的设计中采用公园式绿地设计,置入丰富的绿植、水景、步道,与东侧公园融为一体,相互补充,此时将建筑以底层架空的形式置于场地中,建筑体块采用轻盈通透的外饰面材质,达到“将社区中心放在公园里”的目的。在建筑的设计中我将建筑的主要功能单独拎出,去除其余开放空间与交通辅助空间,做“减法”,留下各个功能“盒子”,将绿色置于“盒子”间,形成空中花园平台,达到“将公园放在社区中心里”的目的。本方案位于南通大学啬园校区内,是用于南通大学艺术学院(建筑学院)的新教学楼。选址位于南通大学啬园校区范曾艺术馆旁,与这样一栋建筑的毗邻,更能增加建筑的艺术氛围,考虑到范曾艺术馆的高度,为与之呼应,所以此次设计的建筑高度并未很高。不同于普通的教学楼,本次设计充分考虑了方案的多重用途,本方案既能充分满足教学办公用途,也能为师生的交流创造交流平台。庭院的设置让环境与建筑结合更加紧密,同时也为同学的日常学习提供了更好的环境。 周庄游客服务中心作为文化艺术建筑,是对周庄景区功能的有益提升和重要补充,从建筑功能上与周边街道相协调。此外,作为周庄景区的重要组成部分,“旅游服务中心”的建设也更有利于塑造展示了周庄景区的形象,继续以江南水乡之最的姿态走向世界。建筑主体采用长方形拼接,既能满足功能造型的要求,又可以与城市肌理融为一体,不觉突兀。采用基本的建筑设计方法,希望能够使建筑与自然和谐统一,展现古镇自有的风貌,与风景区相互衬托。立面方向性强,整体建筑呈现半开放的状态,新的游客服务中心需要将建筑与自然相结合,打破原先的沉闷景象,使人耳目一新。